
MIL-DTL-22759/85A
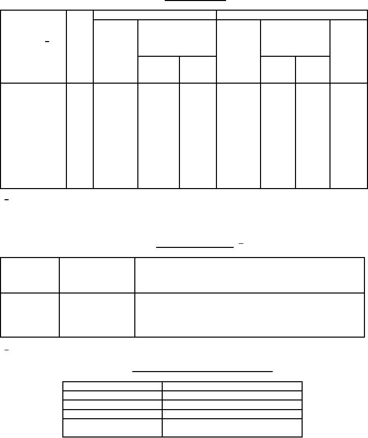
Table I. Construction details.
Conductor
Finished Wire
Diameter
Weight
Stranding
Diameter
Resistance
at 20° C
1/
(in.)
(lb./1000
Part No.
Wire
(number of
(in.)
(68°F)
Size
strands
Ft)
x AWG
(ohms/ 1000
(Max.)
gauge of
MIN.
MAX.
ft max.)
Min.
Max.
strands)
M22759/85-2 -*
2
665 x 30
0.320
0.340
0.183
0.360
0.380
227.0
M22759/85-1-*
1
817 x 30
0.366
0.380
0.149
0.400
0.420
295.0
M22759/85-01-*
0
1045 x 30
0.395
0.425
0.116
0.442
0.462
351.0
M22759/85-02-*
00
1330 x 30
0.440
0.475
0.091
0.498
0.528
432.0
M22759/85-03-*
000
1665 x 30
0.500
0.540
0.071
0.554
0.584
542.0
M22759/85-04-*
0000
2109 x 30
0.565
0.605
0.056
0.615
0.655
689.0
1/
Part Number: The preferred color is dark green with the color designator 5D. Example: Size 2 dark green -
M22759/85-2-5D. White is an acceptable alternate with a color designator of 9.
1/
Table II.
Wire Insulation materials.
Tape
Thickness
Material
code
Nominal
0.0005 (FPFP)/0.0010 (Polyimide)/0.0005 (FPFP)
0.0020
1
0.0020
FP (Skived)
2
0.0030
FP (Unsintered)
3
1/
Physical properties of FP tapes (skived and unsintered) shall be in accordance with MIL-W-22759 requirements.
TABLE III. Physical properties of FP/Polyimide/FP Tapes.
Tensile Strength
19,000 lb/in sq. (average minimum)
Tensile Modulus
350,000 lb/in sq. (average minimum)
Elongation
40 percent (average minimum)
Dielectric Strength
4,000 volts/mil (average minimum)
0.0005 FP Layer (bottom)
Distinguishable color (next to conductor)
May be used at manufacturer's option
2
For Parts Inquires call Parts Hangar, Inc (727) 493-0744
© Copyright 2015 Integrated Publishing, Inc.
A Service Disabled Veteran Owned Small Business