
MIL-DTL-22759/91A
TABLE V. Fluid table. - Continued.
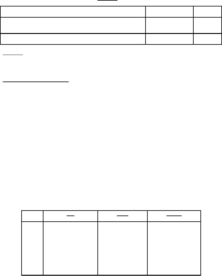
K. TT-S-735, Standard Test Fluids: Hydrocarbon, Type IV
20 - 25 (68 - 77)
168
L. Dielectric - coolant Fluid Synthetic Silicate Ester Base, Monsanto
20 - 25 (68 - 77)
168
Coolanol 25 or approved equivalent.
M. MIL-G-3056, Gasoline, Automotive , Combat
20 - 25 (68 - 77)
168
RATINGS:
Temperature rating: 200° C (392°F) maximum continuous conductor temperature.
Voltage rating: 600 volts (rms.) at sea level
ADDITIONAL REQUIREMENTS:
Wet arc propagation resistance (Test required for initial qualification only): Test in accordance with
MIL-STD-2223 Method 3006. Measure the damage of the bundle along the axis. The wire is acceptable if the
following criteria are met:
1. A minimum of 64 wires pass the dielectric test.
2. Three wires or less fail the dielectric test in any one bundle.
3. Actual damage to the wire is not more than 3 inches in any test bundle.
Dry arc propagation resistance (Test required for initial qualification only): Test in accordance with MIL-STD-2223
Method 3007. Measure the damage of the bundle along the axis. The wire is acceptable if the following criteria are
met:
1. A minimum of 64 wires pass the dielectric test.
2. Three wires or less fail the dielectric test in any one bundle.
3. Actual damage to the wire is not more than 3 inches in any test bundle.
Blocking: 200°C ± 2°C (392°F ± 3.6°F)
Color: In accordance with MIL-STD-104, class 1; excepted as noted below. White preferred. Conformity of color
to the limits of MIL-STD-104 shall not be required after oven exposure.
Munsell color limits for UV laser markable wire
Color
Hue
Value
Chroma
From
To
From
To
From
To
N/A
N/A
7
8.5
2.5RN
2.5RN
Black
4
6
7
8
5PB
7.5B
Blue
2
6
7
9
2.5G
7.5G
Green
4
6
7
8
10RP
5R
Red
4
6
8
9
5Y
10Y
Yellow
2
4
7
9
2.5YR
7.5R
Brown
8
10
6
7
10R
2.5YR
Orange
4
8
7
8
2.5P
7.5R
Violet
Same as Black
Same as Black
Same as Black
Gray
4