
INCH-POUND
MIL-DTL-23806/1D
22 February 2007
SUPERSEDING
MIL-C-23806/1C
20 February 1990
DETAIL SPECIFICATION SHEET
CABLE, RADIO FREQUENCY, COAXIAL, SEMIRIGID, FOAM DIELECTRIC,
.500 INCH, 50 AND 75 OHM, (RG-231A/U, RG-331/U, RG-334/U AND RG-335/U)
Inactive for new design after 10 July 2000
This specification is approved for use by all Departments
and Agencies of the Department of Defense.
The requirements for acquiring the product described herein shall
consist of this specification sheet and MIL-DTL-23806.
Inches
mm
.001
0.03
.002
0.05
.004
0.10
.005
0.13
.098
2.49
.162
4.11
.450
11.43
.500
12.70
.625
15.88
5.
127.
50 ohms
75 ohms
Characteristics
Type I
Type II
Type I
Type II
RG-231A/U
RG-331/U
RG-334/U
RG-335/U
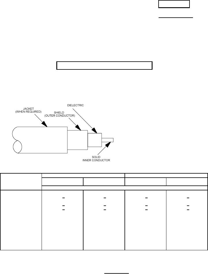
Construction details
Inner conductor
Outside diameter
0.162 + .002
0.162 + .002
0.098 + .001
0.098 + .001
Outer conductor
Inside diameter
0.450 + .004
0.450 + .004
0.450 + .004
0.450 + .004
Outside diameter
0.500 + .005
0.500 + .005
0.500 + .005
0.500 + .005
Jacket
0.045
0.045
Minimum wall
thickness
0.625
0.625
Maximum outside
diameter
5
5
Minimum bending
radius
152
104
187
134
Weight (pounds
per 1000 feet,
maximum)
NOTES:
1. Dimensions are in inches.
2. Metric equivalents are for information only.
FIGURE 1. Construction.
AMSC N/A
FSC 6145
For Parts Inquires call Parts Hangar, Inc (727) 493-0744
© Copyright 2015 Integrated Publishing, Inc.
A Service Disabled Veteran Owned Small Business