
MIL-DTL-3432J
1.2.1.3 Class. The class of cables is identified by a two letter symbol, the first letter of which designates the duty
(see 6.1) in accordance with table I. The second letter indicates the application of the cables in accordance with table
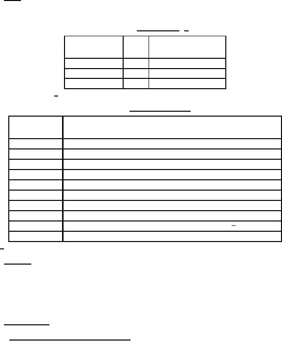
TABLE I. Duty of cables. 1/
(Class) designation
Voltage rating (max volts)
Duty
1st letter
L
Light
300
M
Medium
600
H
Heavy
600
TABLE II. Application of cables.
Class designation
Application
2nd letter
G
General purpose, medium low temperature, -40 °C to +75 °C
O
Medium low temperature, oil resistant, -40 °C to + 75 °C
L
Low temperature, heat resistant, -55 °C to +75 °C
D
Low temperature, oil and heat resistant, -55 °C to +75 °C
H
Low temperature, heat and weather resistant, -55 °C to +90 °C
B
Low temperature, oil and weather resistant, -55 °C to +80 °C
C
Low temperature, oil and heat resistant, -55 °C to +80 °C
K
Low temperature, oil heat, and weather resistant, -55 °C to +80 °C
1/
Low temperature, oil and heat resistant, -55 °C to +90 °C
N
E
Low temperature, ozone, oil, weather, and heat resistant, -65 °C to +90 °C
1/ Synthetic polyisoprene may be blended with natural rubber.
1.2.1.4 Flexibility. Flexibility of a cable is based upon the flexibility of the conductors within the cable. All
conductors and ground wires within the same cable will be of the flexibility designated (see 3.1.1 and 3.1.2). The
flexibility is identified as follows:
S - Semi-flexible
F - Flexible
E - Extra-flexible
1.2.1.5 Conductor data.
1.2.1.5.1 Number and size of individual conductors. The number of individual conductors of the same wire size
are designated by that number followed by a slash and a number indicating the conductor wire size. For example:
"3/22" indicates 3 number 22 AWG conductors. When cables are made up of different wire sizes, each different wire
size is individually represented, with a dash separating each different wire size. For example: "-6/14-1/8" indicates 6
number 14 AWG conductors and 1 number 8 AWG conductor.
2
For Parts Inquires call Parts Hangar, Inc (727) 493-0744
© Copyright 2015 Integrated Publishing, Inc.
A Service Disabled Veteran Owned Small Business