
MIL-DTL-24640C
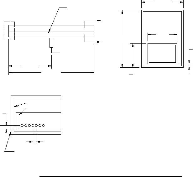
1 3/16±1/16"
MIXING CHAMBER
AREA SHOWN
ENLARGED BELOW
A
7/8±1/16"
2±1/8"
1/2"
A
NOMINAL PIPE
1/16±1/32"
TO GAS/AIR
MIXING
SUPPLY
CHAMBER
12 1/4±1/4"
ENLARGED VIEW
24 1/2±1/4"
7/8±1/16"
OF SECTION A-A
1/32
ALL MIXING CHAMBER
#14 USSG STEEL
HOLES 0.085±0.0001" DIA
#16 USSG STEEL
1/16±1/32"
TOTAL NUMBER OF HOLES ON
EACH SIDE OF MIXING CHAMBER
MIXING
92 MINIMUM, SPACED AND POSITIONED
CHAMBER
AS SHOWN.
HOLES ON 1/4±1/32" CENTER
MIXING CHAMBER TACK-WELDED
TO INSIDE BASE OF BURNER AT
BOTH ENDS.
ENLARGED VIEW OF BURNER END
FIGURE 5. Side view of burner showing internal mixing chamber for the gas flame test.
53
For Parts Inquires call Parts Hangar, Inc (727) 493-0744
© Copyright 2015 Integrated Publishing, Inc.
A Service Disabled Veteran Owned Small Business